heat_r_2g_l_65-51-40-01heat_r_2g_l_65-51-40-01

Камінна топка Romotop HEAT L/R 3g L 65.51.40.21

В наявності

Артикул: 10241

174 600 грн.

Бренд: Romotop

Основні переваги камінної топки  Romotop HEAT L/R 3g L 65.51.40.21:

  • лівостороння/правостороння
  • герметична камера горіння
  • роздільне велике кутове скло з фотодруком
  • високий ККД
  • посилений прокатний профіль для дверної рами
  • футерована натуральним шамотом
  • подача повітря з вулиці
  • безколісникова камера горіння
  • ефективна система “чисте скло”
  • система відводу продуктів згорання Double spin, завдяки якій досягаються рекордні параметри в широкому діапазоні потужності
  • відмінна керованість одним важелем і вражаюча краса горіння
  • кращий продукт у співвідношенні ціни та європейської якості
Compare

Сталева камінна топка Romotop HEAT L/R 3g L 65.51.40.21 – це конвекційна топка з кутовим склом та вертикальним відкриванням дверки  від чеського виробника Romotop,  корпус якої виготовлений з низьковуглицевої сталі товщиною 3 мм, а камера згорання футерована шамотом. Саме завдяки такому матеріалу як шамот камінна топка значно краще акумулює та віддає накопичене тепло.

Камінні топки з підйомними дверцятами оснащені сучасним механізмом Silent Lift, який забезпечує дуже плавний і тихий механізм дверцят. Дверцята камінної топки Romotop HEAT L/R 3g L 65.51.40.21 виконані з посиленого прокатного профілю, що гарантує міцність дверної рами.

DOUBLE SPIN – запатентована система виведення продуктів згоряння Romotop забезпечує рівномірне та повноцінне згорання палива, за рахунок чого досягається високий ККД – 84,85%. Потужність топки сягає 9 кВт, що дозволяє обігріти площу до 90 м.кв.

Для збільшення терміну тепловіддачі на корпус камінної топки можна додатково встановити два типи комплектів шамотної акумуляції. Навісний комплект встановлюється на тильну стінку корпусу камінної топки, а верхній комплект на верхню частину корпусу камінної топки, огортаючи трубу відведення димових газів.

За рахунок того, що камера згорання печі є повністю герметична, є можливість встановлення контролера для автоматичного керування процесом згорання, який дозволяє суттєво знизити витрати палива та запобігає перегріванню каміну.

Обираючи кутову камінну топку Romotop Ви отримуєте високу якість матеріалів, екологічність та економію палива.

Додаткові аксесуари:

  • AKKUM KV 02 навісний акумуляційний комплект ROMOTOP MAMMOTH (46 кг)
  • AKKUM KV 04 верхній комплект акумуляції ROMOTOP MAMMOTH (70 кг) d 200 мм
  • H3LF RAM11– рамка декоративна
  • H3LF RAM12– рамка декоративна
  • H3LF RAM13– рамка монтажна
  • H3LF RAM14– рамка глибока декоративна
  • H3LF RAM15– рамка верхня основа
  • D3 MADLO 01P – дизайнерська ручка (праве відкривання дверцят)
  • Знімна ручка для камінних топок з боковим відкриванням
  • HR2SX RAM06 4S– рамка неглибока декоративна
  • D3 MADLO 01 – дизайнерська ручка
  • H3 AIRBOX 02 – адаптер ЦПП
  • Змінні ніжки 190 мм для регулювання висоти камінних топок
  • ECO 100 – автоматика управління горінням для камінів (D=150 мм)

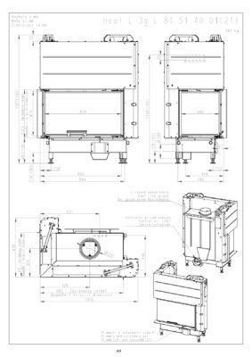
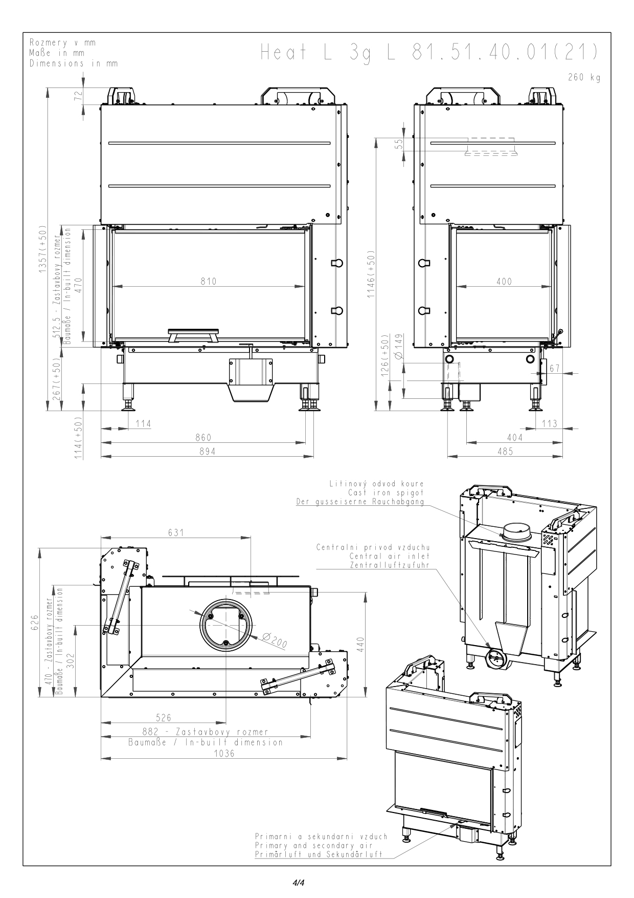
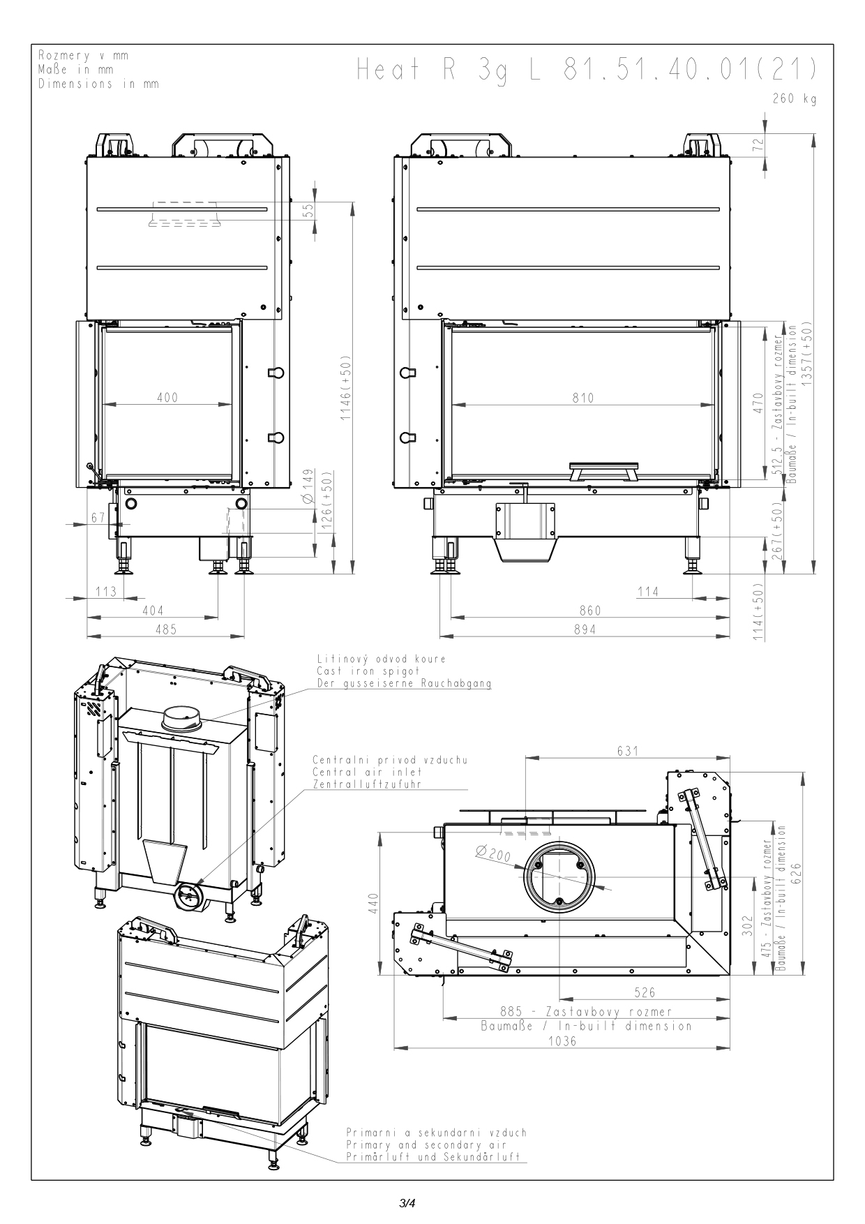
Технічні дані Romotop HEAT L/R 3g L 65.51.40.21

 

Бренд

Виробник

Чехія

Вид топки

Повітряна топка закритого типу

Матеріал топки

Сталь

Потужність

3,9-9 кВт

Площа обігріву

150 м2

ККД

84,85 %

Паливо

Дерево

Максимальна довжина полін

560 мм

Діаметр димоходу

200 мм

Підведення повітря

З вулиці

Діаметр допливу повітря

150 мм

Внутр. оздоблення топки

Шамот

Метод відкриття дверей

гільйотина

Вид скла

Пряме

Подвійне допалювання

Так

Система чистого скла

так

Розміри ВхШхГ

1357х876х626 мм

Вага

235 кг

Гарантія

5 років